Skip To Content

106 East St

Hutto, TX 78634
  • $4,740
  • STATUS: Active
  • ID#: 6236086
UPDATED: 57 min ago
$4,740
  • 0
    BEDS
  • 0.06
    ACRES
  • 0
    BATHS
  • 0
    1/2 BATHS
Neighborhood:
Type:
Commercial-Lease
Built:
1895
County:
Area:

School Ratings & Info

Property listed by Robert Fischer of Keller Williams Realty-RR: (512) 994-0247.

Description

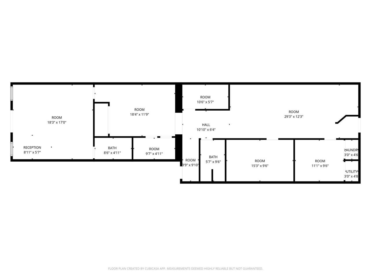
Excellent opportunity to lease a 1,760 SF retail/office space in the heart of downtown Hutto, just off the corner of Highway 79 and East Street. The property is currently operating as a full-service salon featuring 9 stylist chairs, manicure/pedicure stations, and massage rooms. The space offers a large reception and retail display area, multiple private treatment rooms (5 separate areas), restrooms, kitchenette, laundry area, and dedicated storage. Well-configured layout supports continued salon use or easy conversion to professional office, medical, wellness, or boutique retail concepts. Strong visibility and accessibility in one of Hutto’s most active commercial corridors. Lease Rate: $25.00 PSF + NNN ($7.32 PSF) Total Monthly Est.: Approx. $4,740/month + utilities All information is deemed reliable. Tenant to verify all information.



© 2026 Austin Board of REALTORS® (alternatively, from ACTRIS). All information provided is deemed reliable but is not guaranteed and should be independently verified. The Austin Board of REALTORS®, ACTRIS and their affiliates provide the MLS and all content therein “AS IS” and without any warranty, express or implied.The information provided is for consumers' personal, non-commercial use and may not be used for any purpose other than to identify prospective properties consumers may be interested in purchasing. Data last updated: 2026-04-11T19:01:43.407.

MLS Grid  logoBased on information submitted to the MLS GRID as of 2026-04-11T19:01:43.407 (date and time MLS GRID Data was obtained). All data is obtained from various sources and may not have been verified by broker or MLS GRID. Supplied Open House Information is subject to change without notice. All information should be independently reviewed and verified for accuracy. Properties may or may not be listed by the office/agent presenting the information. Click here for MLS GRID DMCA Notice
www.armstrongpropertiestx.com/homes/173348082
Print Image

106 East St Hutto, TX 78634

  • Price: $4,740
  • Status: Active
  • On Site: Days
  • Updated: 57 min ago
  • ID#: 6236086
0
Beds
0
Baths
0
½ Baths
0.06
Acres
1895
Built
Neighborhood:
Ig & N Railroad Add
County:
Williamson
Area:
Hutto
Property Description
Excellent opportunity to lease a 1,760 SF retail/office space in the heart of downtown Hutto, just off the corner of Highway 79 and East Street. The property is currently operating as a full-service salon featuring 9 stylist chairs, manicure/pedicure stations, and massage rooms. The space offers a large reception and retail display area, multiple private treatment rooms (5 separate areas), restrooms, kitchenette, laundry area, and dedicated storage. Well-configured layout supports continued salon use or easy conversion to professional office, medical, wellness, or boutique retail concepts. Strong visibility and accessibility in one of Hutto’s most active commercial corridors. Lease Rate: $25.00 PSF + NNN ($7.32 PSF) Total Monthly Est.: Approx. $4,740/month + utilities All information is deemed reliable. Tenant to verify all information.
Exterior Features

Attached Garage YN No Bays 0 Garage YN No Parking Features None Road Surface Type AsphaltCurb/GutterSidewalks Stories Total 1 Waterfront YN No

Interior Features

Building Area Total 1760 Cooling Central Air Flooring See Remarks Heating Central

Property Features

Accessibility Features None Building Features Kitchen EquipmentPrivate RestroomsReceptions RoomStorage Current Use Beauty/Barber Shop Fema Flood Plain No Horse YN No New Construction YN No Pool Private YN No Property Condition Resale Property Sub Type Retail Sewer Public Sewer Utilities Electricity Available Water Source Public



© 2026 Austin Board of REALTORS® (alternatively, from ACTRIS). All information provided is deemed reliable but is not guaranteed and should be independently verified. The Austin Board of REALTORS®, ACTRIS and their affiliates provide the MLS and all content therein “AS IS” and without any warranty, express or implied.The information provided is for consumers' personal, non-commercial use and may not be used for any purpose other than to identify prospective properties consumers may be interested in purchasing. Data last updated: 2026-04-11T19:01:43.407.

MLS Grid  logoBased on information submitted to the MLS GRID as of 2026-04-11T19:01:43.407 (date and time MLS GRID Data was obtained). All data is obtained from various sources and may not have been verified by broker or MLS GRID. Supplied Open House Information is subject to change without notice. All information should be independently reviewed and verified for accuracy. Properties may or may not be listed by the office/agent presenting the information. Click here for MLS GRID DMCA Notice
 
https://bt-photos.global.ssl.fastly.net/austin/orig_boomver_1_6236086-2.jpg https://bt-photos.global.ssl.fastly.net/austin/orig_boomver_1_6236086-2.jpg https://bt-photos.global.ssl.fastly.net/austin/orig_boomver_1_6236086-2.jpg
Logo
Armstrong Properties
115 West Buck
Caldwell TX, 77836
Property listed by Robert Fischer of Keller Williams Realty-RR: (512) 994-0247.